2d cad drawing of Potable water well autocad software
Description
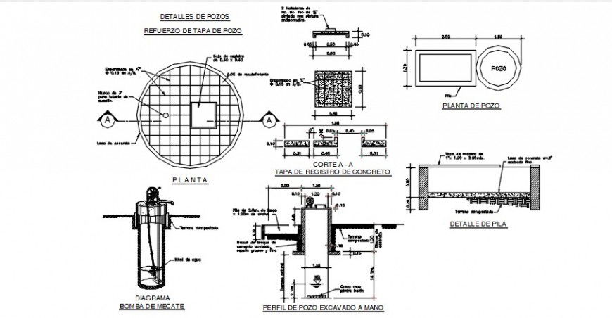
2d cad drawing of Potable water well autocad software detailed with a connected water tank with water pipes and been allotted separate pipes for floor wise in apartment and dimension been given with described drawing of water well.
Uploaded by:
Eiz
Luna

